Quand on évoque les souvenirs de la Résistance de l'été 44 les sites de Miné-Kervir et de Kernabat sont ancrés dans la mémoire populaire. Celui de Tréouzal où mourut Louis Landrein le 3 août l'est moins. Voici le témoignage d’un habitant du quartier Pierre Monfort, dont le père Louis Monfort était à l'époque maire de la commune et ancien député.
"Début août, la compagnie Boissière ( Chapel) privilégiant la mobilité, s'installe à Tréouzal. La moisson a débuté et les gerbes de seigle se prêtent à la création de tentes. Plusieurs engagés nous rendent visite dans la soirée, prendre quelques outils et causer autour d'un verre de cidre.
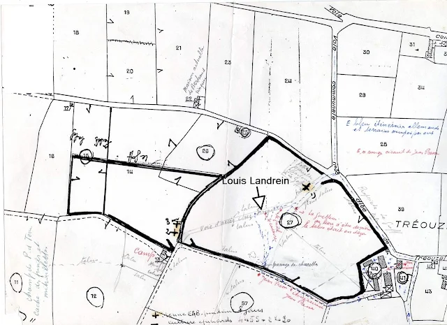
Le lendemain, deux colonnes d'occupants arrivent à Tréouzal par le chemin de Saint Paul et de Tréouzal, en provenance de Moulin Nabat. Mon père dit à Jean Presse, notre employé, "Kerz da wel zaout" c'est-à-dire " va voir les vaches" (sous-entendu va avertir les Résistants).
Une diversion salvatrice
À 60 mètres du carrefour Louis Landrein, le FFI de garde a été aperçu sur le chemin par un soldat allemand. il aurait dû être derrière le talus. L'ennemi est plus rapide et le guetteur est blessé à mort. Sa résistance physique et son énergie lui permettent d'emporter son fusil sur quelques mètres et lui-même se couche dans un fossé profond. Les Allemand à la recherche de Louis Landrein se rapprochent du camp bien caché par les haies. Aucun français n'a tiré. L'ennemi aperçoit à 100 mètres un homme préhistorique marchant sur une voie charretière. Il porte à son bras un objet indéfinissable. Mitraillette ? Non, c'est la prothèse de Jean Presse qui bien entendu attire leur regard: Jean Presse, charretier-laboureur, avait été grièvement blessé dans
un accident du travail dans les années 20. Le forgeron Laou Floc'h lui
avait fabriqué une prothèse rustique munie d'un crochet.
La colonne revient à la ferme avec Jean Presse. Mon père intervient et obtient du capitaine allemand la libération de Jean Presse. L'occupant ne s'attarde pas: il est pressé et file sur Fornigou en Guiscriff où un patriote a été fait prisonnier . La diversion audacieuse de Jean Presse et le sang-froid de Louis Landrein ont sauvé les Résistants. Le 3 août 1944, le message lancé sur les ondes de la BBC - " Le chapeau de Napoléon est-il toujours à Perros-Guirec ? " déclenche l’insurrection générale et les maquisards quittent Tréouzal.Les Combattants de L'ombre n'ont passé qu'une nuit et un jour à Tréouzal. L'ordre d'attaquer étant donné, ils sont partis dans la soirée.
Deux jours après le départ des Allemands, nous avons ramassé une
vingtaine de grenades goupillées. Dix fusils et mitraillettes camouflées
dans les pommes de terre seront récupérés par les patriotes".
***
Deux jours plus tard, le cadavre de Louis Landrein sera retrouvé par Louis Monfort (fils) . Ce dernier aurait souhaité qu'une stèle soit érigé en mémoire de Louis Landrein au carrefour voisin de l'endroit où il avait vu le cadavre... Hasard ou déterminisme: quand il a quitté Tréouzal pour venir vivre au bourg, Louis Monfort fils acheta une maison... rue Louis Landrein dans la cité " Chambre de commerce"!
Retour


